Одноступенчатые центробежные насосы TL 40
- TL 40-2/4T
- TL 40-5/4T
- TL 40-8/4T
|
Серия
|
TL |
Предназначены для перекачивания чистых, маловязких, неагрессивных и взрывобезопасных жидкостей без твердых или длинноволокнистых включений. Перекачиваемая жидкость не должна механически или химически воздействовать на материалы насоса.
Область применения
Одноступенчатые центробежные насосы TL с патрубками («in-line») предназначены для перекачивания воды в системах:- отопления;
- горячего водоснабжения (ГВС);
- вентиляции;
- кондиционирования.
Условия эксплуатации
Насосы серии TL предназначены для перекачивания чистых, маловязких, неагрессивных и взрывобезопасных жидкостей без твердых или длинноволокнистых включений. Перекачиваемая жидкость не должна механически или химически воздействовать на материалы насоса.
Вязкость
Перекачивание жидкостей с плотностью или кинематической вязкостью большими, чем у воды, приводит к падению давления, снижению гидравлических характеристик и увеличению потребления энергии. В этом случае насос должен быть оснащен двигателем большей мощности
Материалы исполнения насосов
| № | Деталь | Материал |
| 1 | Корпус насоса | Чугун |
| 2 | Рабочее колесо | Чугун |
| 3 | Фонарь | Чугун |
| 4 | Торцевое уплотнение | BQQE |
| 5 | Вал | Нержавеющая сталь |
| 6 | Спускной клапан | Нержавеющая сталь |
| 7 | Уплотнение | Viton |
Гидравлические характеристики:
| Модель | Артикул | Qном [м³/ч] | Нном [м] | Р2 [кВт] | Масса [кг] |
| TL 40-2/4T, BQQE | 28129979 | 5 | 2 | 0,75 | 42 |
| TL 40-8/4T, BQQE | 28129978 | 5 | 8 | 0,75 | 52 |
| TL 40-5/4T, BQQE | 28129977 | 5 | 5 | 0,75 | 42 |
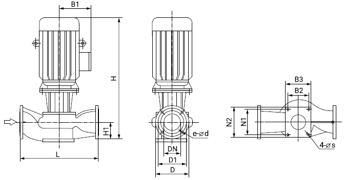
Размеры

|
Модель |
Размеры [мм] | |||||||||||||
| L | H | H1 | B1 | B2 | B3 | N1 | N2 | Øs | ØDN | ØD | ØD1 | e | Ød | |
| TL 40-2/4T, BQQE | 320 | 663 | 98 | 150 | 195 | 235 | 195 | 235 | 14 | 40 | 150 | 110 | 4 | 18 |
| TL 40-8/4T, BQQE | 340 | 725 | 115 | 150 | 195 | 235 | 195 | 235 | 14 | 40 | 150 | 110 | 4 | 18 |
| TL 40-5/4T, BQQE | 320 | 663 | 98 | 150 | 195 | 235 | 195 | 235 | 14 | 40 | 150 | 110 | 4 | 18 |
Гарантийный срок на насосы WELLMIX составляет 2 года со дня продажи.
Листы данных
Задать вопрос
Нет в наличии
